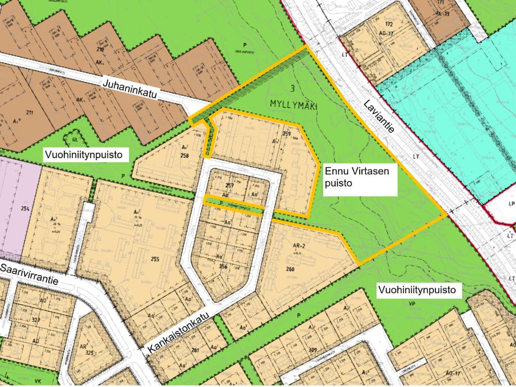
Vuohiniitynpuiston muuttamisesta Ennu Virtasen puistoksi on saapunut aloite marraskuussa 2022. Kaupunkisuunnittelulautakunta on hyväksynyt 13. joulukuuta 2022 nimenmuutosta varten järjestettävän kuulemisen verkossa olevan kyselyn muodossa.
Puiston osan nimenmuutosta käsittelevä aineisto on kommentoitavana otakantaa.fi -palvelussa 19. marraskuuta 2025 alkaen. Aineistoa voi kommentoida 4. joulukuuta 2025 asti.
Linkki otakantaa.fi-sivuston kyselyyn
Nimenmuutoksesta järjestettiin kysely vuoden 2023 alussa, jolloin kommentteja kertyi yhdeksän kappaletta. Niistä viisi oli vastaan ja neljä puolesta. Nyt aluetta on rajattu ja nimenmuutos koskee vain Ennu Virtasen viimeisen asuinpaikan lähiympäristöä.
